Verkocht

2e Daalsedijk 107 B Utrecht

Omschrijving

In de populaire wijk Bloemenbuurt is gelegen deze fijne knusse tussenwoning met een ruime woonkamer, 2 slaapkamers en een achtertuin op het noordoosten.

De 2e Daalsedijk ligt gelegen nabij de Amsterdamsestraatweg, en op een paar minuten loopafstand van station Zuilen. Achter het station Zuilen ligt: “Cab” (brouwerij de Oproer, Filmcafé, Studio en concertzaal DB’s) leuke plek met veel horecagelegenheid. Amsterdamsestraatweg kenmerkt zich door de vele winkels en restaurantjes. Daarnaast is het centrum van Utrecht binnen 10 minuten te fietsen. Wilt u de rust opzoeken dan kunt u heerlijk wandelen of rustig een boek lezen in het Julianapark. Daarnaast zijn de uitvalswegen snel te bereiken. Kortom een leuke fijne buurt om in te wonen.

We nemen u mee voor een rondleiding in de woning;

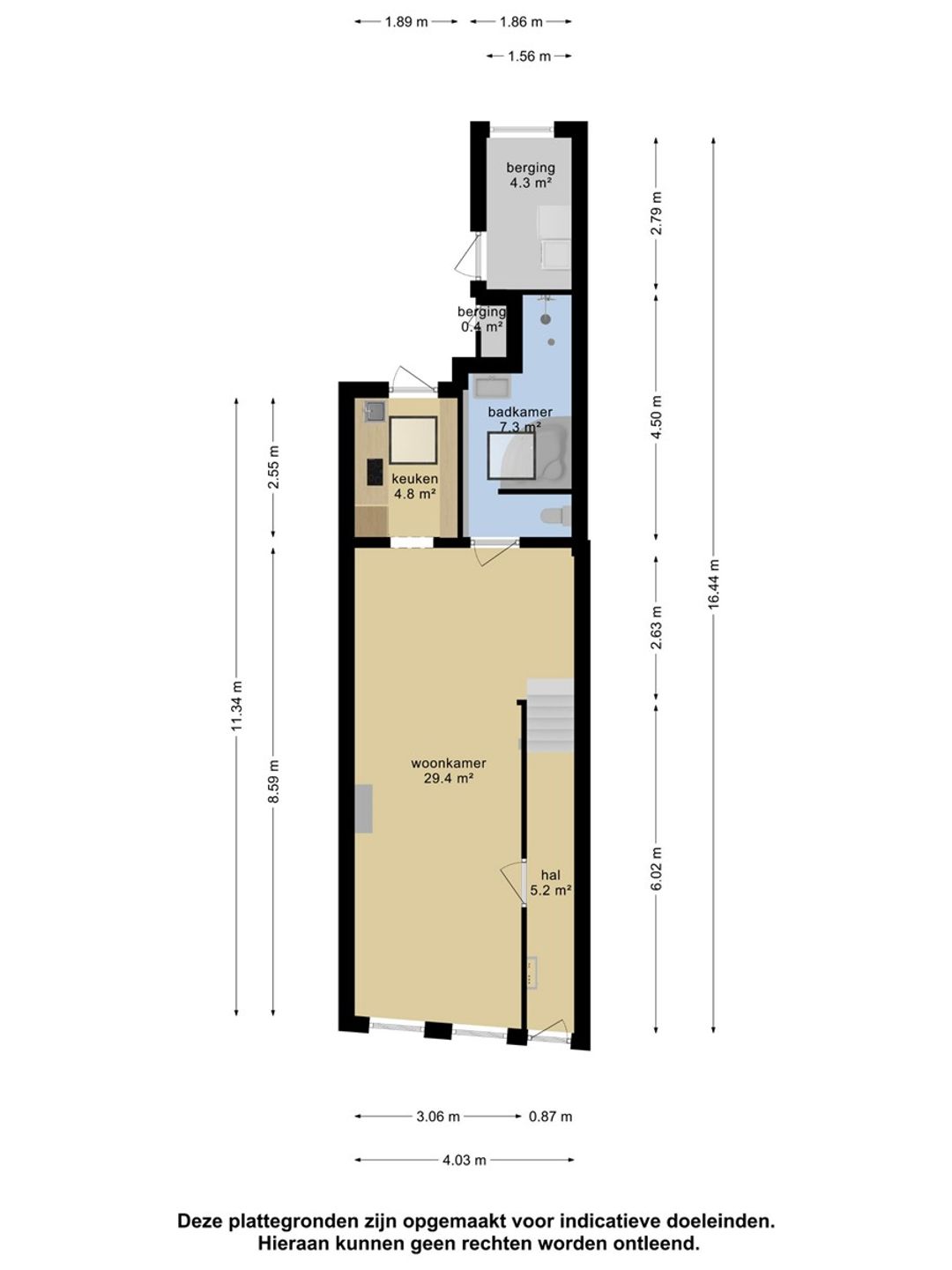
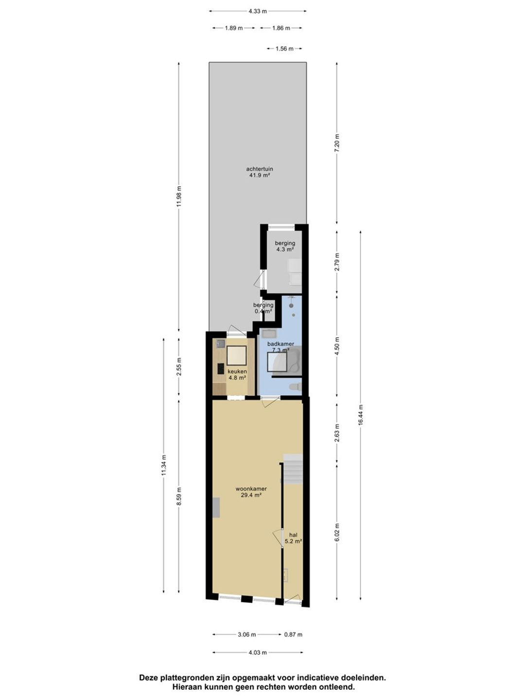
Begane grond; entree, trapopgang en toegang tot de woonkamer. De woonkamer is ca 29m2 groot en is voorzien van een massief Canadese grenenhouten vloer. Vanuit de woonkamer heeft u toegang tot de keuken en de badkamer. De zeer nette keuken is 3 jaar oud en voorzien van diverse inbouwapparatuur zoals; gasfornuis, afzuigkap, koelkast, vaatwasser. De keuken beschikt over een lichtkoepel waardoor er veel lichtinval in de keuken aanwezig is. Via een openslaande deur in de keuken heeft u toegang tot de achtertuin. Badkamer is zeer ruim en beschikt over een inloopdouche, wastafelmeubel met spiegel, ligbad met whirlpool en een zwevend toilet. Ook de badkamer beschikt over een lichtkoepel.

Tuin; de achtertuin is gelegen op het noordoosten en beschikt over een aangebouwde houten berging. Berging is voorzien van de aansluiting van de wasmachine/droger.

Eerste verdieping; via de overloop bereikt u de 2 slaapkamers, toiletruimte en een bergkast met cv-opstelling.

Aan de voorzijde ligt de grootste slaapkamer van ca 16.9m2. Aan de achterzijde treft u een de tweede slaapkamer van ca 7.6m2. Zeer ruime toiletruimte voorzien van zwevend toilet en fonteintje. De gehele eerste verdieping is voorzien van een massief Canadese grenenhouten vloer.

Kenmerken;

– Bouwjaar ongeveer 1910;

– CV Vaillant 3 jaar oud;

– Wasmachine opstelplaats is in de berging gesitueerd;

– Woonoppervlak 84 m2;

– 3 jaar geleden gehele dak vernieuwd en lichtkoepels geplaatst;

– 3 jaar geleden keuken vernieuwd;

– Kozijnen zijn gedeeltelijk hout en gedeeltelijk kunststof voorzien van dubbel glas.

– Oplevering in overleg.

Geïnteresseerd? Neem contact met ons op voor een vrijblijvende bezichtiging!

Lees de volledige omschrijving

Kenmerken

Algemeen

Aangeboden sinds
6+ maanden
Status
Verkocht
Aanvaarding
In overleg
Soort woonhuis
Eengezinswoning, tussenwoning
Soort bouw
Bestaande bouw
Soort dak
Bitumineuze dakbedekking
Ligging
Aan rustige weg, in woonwijk

Oppervlakten en inhoud

Wonen
84 m²
Overige inpandige ruimte
4 m²
Externe bergruimte
1 m²
Inhoud
337 m³

Indeling

Aantal kamers
3 kamers (2 slaapkamers)
Aantal badkamers
1 badkamer
Badkamervoorzieningen
Douche, ligbad, toilet, wastafel
Aantal woonlagen
2

Energie

Energielabel
E
Isolatie
Dakisolatie, dubbel glas
Verwarming
Cv ketel
Warm water
Cv ketel
Cv-ketel
Vaillant ( gestookt uit 2017, eigendom)

Buitenruimte

Tuin
Achtertuin
Achtertuin
42 m²
Ligging tuin
Noordoost

Bergruimte

Schuur/berging
Aangebouwd hout

Parkeergelegenheid

Soort parkeergelegenheid
Betaald parkeren, openbaar parkeren, parkeervergunningen
Bekijk alle kenmerken
2e Daalsedijk 107 B
Utrecht
Verkocht