Verkocht

Waterbieslaan 54 Vleuten

Omschrijving

Wilt u graag wonen in een van de meest rustige delen van de kindvriendelijke woonwijk Vleuterweide? Deze heerlijke woning met een ca.130m2 leefruimte ligt in de woonwijk ‘De Rietvelden’, aan de uiterste westrand van de gemeente Utrecht en aan de grens van het Groene Hart. De woning ligt op 5 minuten fietsafstand van station Vleuten, van waar u binnen tien minuten in Utrecht bent. Op loop- en fietsafstand zijn meerdere basis- en middelbare scholen te vinden, sportfaciliteiten, kinderopvang, het Winkelcentrum Vleuterweide, het Maxima Park en het nieuwe Leidsche Rijn Centrum. Met meerdere buslijnen, uitvalswegen naar A2/A12 is de wijk zeer centraal gelegen.

Indeling;

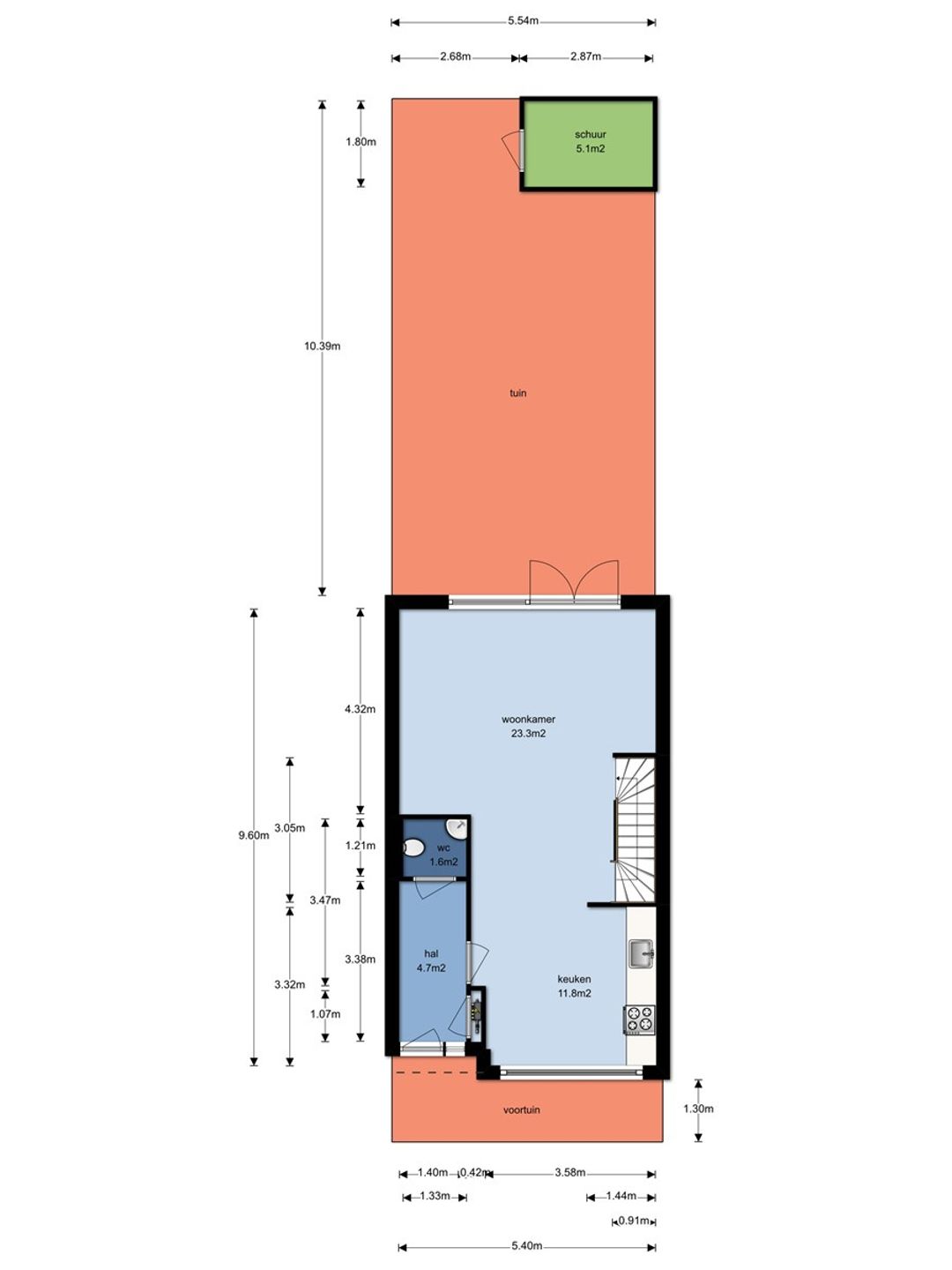
Begane grond; entreehal met meterkast, toegang naar hangend toilet en fontein, Via de hal toegang tot de woonkamer met open keuken, die zich aan de voorzijde van de woning bevindt. De zeer nette woonkamer is ca 23.3 m2 groot en is voorzien van 2 openslaande deuren naar de tuin. In de woonkamer is de open trap gesitueerd. De zeer nette keuken is voorzien van diverse inbouw apparatuur zoals oven, magnetron, afzuigkap vaatwasser, 5 pits kookplaat incl. wok, koelkast en vriezer. Daarnaast beschikt de keuken over een composiet werkblad. De gehele begane grond is voorzien van een hoogwaardige laminaat vloer.

Tuin; vanuit de openslaande deuren bereikt u de fraai aangelegde tuin gelegen op het zuiden en is ca 57.6m2 groot. De tuin is voorzien van een achterom en daarnaast beschikt het over een stenen schuur van ca 5m2.

Eerste verdieping; via de trap bereikt u de overloop die toegang verschaft naar 3 slaapkamers, badkamer en een wasruimte. De eerste slaapkamer is gesitueerd aan de voorzijde van de woning en is ca.17.8m2 groot. De andere 2 slaapkamers liggen aan de achterzijde van de woning en zijn ca. 9.8m2 en 6.5m2 groot. De badkamer is voorzien van douche, toilet, wastafelmeubel en design radiator. Daarnaast beschikt deze verdieping over een aparte wasruimte met cv-opstelling en wasmachine aansluiting.

Tweede verdieping; via de trap bereikt u de overloop die toegang verschaft naar een slaapkamer. De slaapkamer heeft doordat er 2 grote dakramen zijn veel lichtinval daarnaast is er ook veel bergmogelijkheid achter de schotten. Aan de andere zijde verschaft de overloop toegang tot het dakterras van 6.4m2, welke ligt op het noordoosten.

Kenmerken;

-Perceel 138m2 eigen grond;

-Dakterras;

-Energielabel A;

-Dubbel glas;

Bent u geïnteresseerd in deze woning neem dan contact met ons op voor een geheel vrijblijvende afspraak.

BOUWKUNDIG ADVIES:

VHM Makelaars Utrecht adviseert u altijd bij de aankoop van een woning een onafhankelijk bouwkundig onderzoek in te stellen.

MAATGEVING:

Alle maten in de brochure en van alle plattegronden zijn volgens NEN2580 normen, hieraan kunnen geen rechten ontleend worden.

Alle informatie is met de grootst mogelijke zorg samengesteld. Toch kunnen wij niet altijd voorkomen dat de informatie enigszins afwijkt van hetgeen u in of rond de woning ziet of heeft gezien.

Dit kan met name gelden voor de brochure tekst, de plattegronden en maatvoeringen. Hieraan kunnen dan ook geen rechten worden ontleent

Lees de volledige omschrijving

Kenmerken

Algemeen

Aangeboden sinds
6+ maanden
Status
Verkocht
Aanvaarding
In overleg
Soort woonhuis
Eengezinswoning, tussenwoning
Soort bouw
Bestaande bouw
Bouwjaar
2005
Soort dak
Bitumineuze dakbedekking
Ligging
Aan rustige weg, in woonwijk

Oppervlakten en inhoud

Wonen
130 m²
Gebouwgebonden Buitenruimte
9 m²
Externe bergruimte
5 m²
Inhoud
445 m³

Indeling

Aantal kamers
5 kamers (4 slaapkamers)
Aantal badkamers
1 badkamer
Badkamervoorzieningen
Douche, toilet, wastafel
Aantal woonlagen
3
Voorzieningen
Buitenzonwering, mechanische ventilatie

Energie

Energielabel
A
Isolatie
Dakisolatie, dubbel glas, muurisolatie, vloerisolatie
Verwarming
Cv ketel
Warm water
Cv ketel

Buitenruimte

Tuin
Achtertuin
Achtertuin
58 m²
Ligging tuin
Zuid

Bergruimte

Schuur/berging
Vrijstaand steen
Bekijk alle kenmerken
Waterbieslaan 54
Vleuten
Verkocht